Diện tích một căn hộ lớn thì thật dễ dàng để bạn có nhiều không gian sáng tạo cho căn nhà của mình. Nhưng còn các căn hộ diện tích nhỏ thì sao? Hãy xem các kiến trúc sư Cartelle giúp biến hoá một căn hộ 56 m2 ra sao nhé.
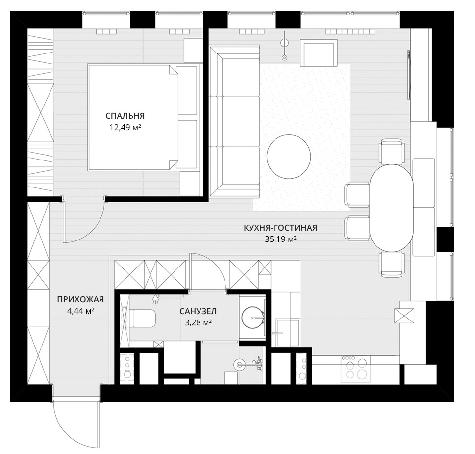
Thứ nhất là việc bố trí diện tích cho các không gian. Với căn hộ 56,4 m2 các kiến trúc sư ở Cartelle phân chia 12,49 m2 cho phòng ngủ, 35,19 m2 cho không gian sinh hoạt gồm phòng khách bếp và bàn ăn, 4,28 m2 cho phòng tắm và 4,44 m2 cho lối đi lại.

Thứ hai là sử dụng phong cách thiết kế hiện đại tối giản Minimalist để giảm bớt các chi tiết gây rối mắt và tạo độ thoáng cho căn nhà. Với các không gian nhỏ việc các kiến trưc sư sử dụng các gam màu lạnh cũng giúp cho ngôi nhà trở nên mát mẻ.

Thứ ba là lược bỏ các chi tiết không cần thiết. Trong ảnh có thể thấy các kiến trúc sư đã xử lý rất tốt để loại bỏ các góc cạnh.

Thứ tư, sử dụng các thiết bị gắn tường. Không chỉ hệ thống đèn được gắn sát vào tường, các thiết bị vệ sinh như bồn cầu, sen tắm, vòi chậu rửa cũng sử dụng loại âm tường tạo ra sự sang trọng và loại bỏ hết những yếu tố rườm rà gây rồi mắt. Những thiết bị này có thể tham khảo tại showrroom Bravat tại 160A Lạc Trung, Hà Nội.

Ảnh: nội thất cho căn hộ 56.4 m2 tại công viên Vander, Moscow, Nga. Thiết kế bởi: Cartelle Design (KTS Ksyusha Shkolnikova, Denis Krasikov)
————————————————————
☎ Tư vấn online 24/7: Bất cứ khi nào bạn cần đã có chúng tôi. Showroom chính hãng duy nhất tại Miền Bắc 160A Lạc Trung – Hai Bà Trưng – Hà Nội
Nhấc máy lên và gọi : 0911 282 398
Website: www.bravatmienbac.com.vn








